



















































Verkoop en informatie
Schout de Boerstraat 1, 9791BV Ten Boer
Vraagprijs
WoonoppervlakWoonopp.
119 m2PerceeloppervlakPerceelopp.
536 m2Omschrijving
In een rustige straat van Ten Boer vind je deze keurig onderhouden vrijstaande woning met vier slaapkamers, een royale tuin rondom, eigen oprit, garage en bergingen. Een fijn huis waar je direct het gevoel van ruimte en comfort ervaart.
Indeling:
Je komt binnen via de hal en loopt door naar de lichte woonkamer van circa 31 m². Aansluitend bereik je de keuken met hoekopstelling en uitzicht op de tuin, met daarnaast een praktische bijkeuken met witgoedaansluitingen en een zijentree.
Op de eerste verdieping vind je vier volwaardige slaapkamers en een ruime badkamer met ligbad, douche en tweede toilet. De woning is netjes afgewerkt en klaar om zo te betrekken.
Dankzij onder andere 10 zonnepanelen, kunststof kozijnen met HR++ glas, een nieuwe cv-ketel (2021) en dak- en muurisolatie is er een goede basis voor comfortabel en energiezuinig wonen.
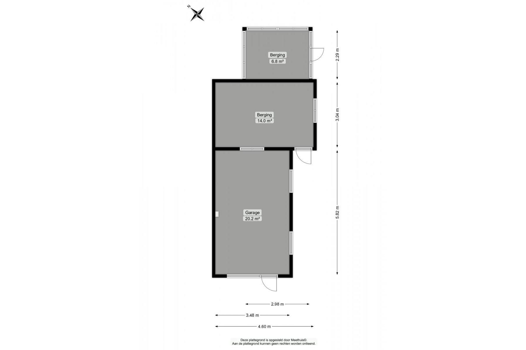
De royale tuin rondom biedt volop privacy en meerdere zonnige terrassen, waardoor u op elk moment van de dag een fijne plek vindt om buiten te zitten. Op eigen terrein bevinden zich een vrijstaande garage en een aangebouwde berging/schuur met een totale oppervlakte van circa 40 m², ideaal voor opslag, hobby’s of het stallen van fietsen en gereedschap.
Ten Boer is een levendig en gezellig dorp met alle dagelijkse voorzieningen binnen handbereik: winkels, scholen, sportfaciliteiten en een actief verenigingsleven. Dankzij de goede openbaarvervoersverbindingen zijn zowel Groningen als Delfzijl uitstekend bereikbaar. Voor ontspanning en natuur liggen het Ten Boersterbos en de historische Stadsweg op loopafstand, perfect voor wandelingen en fietstochten.
KENMERKEN
- 536 m² eigen grond
- Garage/berging/schuur circa 40 m²
- Energielabel D
- Zonnepanelen 10x (2016)
- CV ketel Remeha (bouwjaar 2021 eigendom)
- Grotendeels kunststofkozijnen met HR++ beglazing (uit subsidie Nij Begun)
- Muren en dak geïsoleerd
- Subsidie "Nij Begun" nog deels beschikbaar/door koper aan te vragen (isolerende maatregelen)
- Ouderdomsclausule wordt opgenomen in de koopovereenkomst
Kenmerken
Algemeen
Bouw
Oppervlakten en inhoud
Indeling
Energie
Brochure
Klik op de icoontjes om de documenten te downloaden