



























































Verkoop en informatie
Engelberterweg 112, 9723EP Groningen
Vraagprijs
WoonoppervlakWoonopp.
134 m2PerceeloppervlakPerceelopp.
1.659 m2Omschrijving
Vrijstaand woonhuis met loods en prachtig uitzicht over de landerijen.
Op een schitterende locatie, onder de rook van Groningen, staat deze uitstekend onderhouden vrijstaande woning met royale loods. De woning combineert comfortabel en toekomstbestendig wonen met volop ruimte voor hobby of werk aan huis.
WONING
Deze volledig gasloze woning is voorzien van maar liefst 39 zonnepanelen, een warmtepomp met elektrische boiler (Toshiba, 2024) en vloerverwarming door het hele huis. Met een energielabel A+ is de woning klaar voor de toekomst.
Het onderhoudsarme karakter, dankzij kunststof kozijnen en goten, zorgt voor extra wooncomfort.
De lichte woonkamer met open keuken is volledig afgewerkt met een natuurstenen vloer voorzien van vloerverwarming. In 2024 is een nieuwe, moderne keuken geplaatst, uitgerust met luxe inbouwapparatuur.
De woning is bovendien levensloopbestendig: op de begane grond bevinden zich een slaapkamer en badkamer.
Op de eerste verdieping biedt de overloop toegang tot twee ruime slaapkamers, een tweede badkamer met toilet en voldoende bergruimte.
Loods / Werkplaats
De woning beschikt over een ruime, volledig geïsoleerde loods met een oppervlakte van circa 212 m² en een zolderverdieping.
De loods is bereikbaar vanuit de woning en is uitgerust met elektrische overheaddeuren, elektra, compressor/luchtvoorziening, afzuiging en wateraansluiting.
Een ideale ruimte voor bijvoorbeeld hobby’s (zoals auto’s), een werkplaats of opslag.
Buitenruimte
Het geheel ligt vrij en landelijk, met weids uitzicht over de landerijen.
Er is voldoende parkeergelegenheid op eigen terrein, een fraai elektrisch toegangshek en een verzorgde tuin rondom.
Indeling
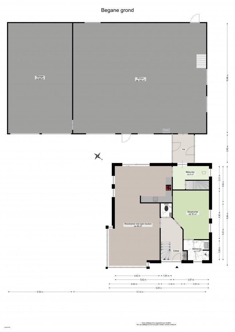
Begane grond:
Entree; slaapkamer met aangrenzende badkamer (samen ca. 21 m²); toilet; woonkamer met open keuken (ca. 49 m²); bijkeuken met witgoedaansluitingen; kelder; tochtportaal met doorgang naar loods/garage, achter- en zij-entree.
Aangrenzende loods/garage: circa 212 m².
Eerste verdieping:
Overloop; twee slaapkamers van ca. 10 m² en 12 m² (gemeten op 1,5 m hoogte respectievelijk ca. 20 m² en 23 m²); badkamer met toilet, wastafel en douche; berging/technische ruimte; extra berging.
Interesse?
Deze woning biedt de ideale combinatie van comfortabel wonen, duurzaamheid en ruimte.
Maak snel een afspraak voor een bezichtiging en ervaar het zelf!
Kenmerken
* Loods/werkplaats/garage van ca. 212 m²
* Volledig gasloos
* 39 zonnepanelen
* Energielabel A+
* Vloerverwarming
* Warmtepomp + elektrische boiler (Toshiba, 2024)
* Kunststof kozijnen
* Nieuwe keuken (2024)
* Vrije ligging met weids uitzicht
Kenmerken
Algemeen
Bouw
Oppervlakten en inhoud
Indeling
Energie
Brochure
Klik op de icoontjes om de documenten te downloaden